miércoles, octubre 15, 2025
Juan Becerra VilaJuan Becerra y Manuel TejaMonografías

Su Obra en Vivienda Social

Edificios multifamiliares

La Máxima flexibilidad en los espacios que se producen en la arquitectura es básica, ya que las necesidades de sus usuarios son variables en el transcurso del tiempo en que utilizan una edificación, por lo que es necesario que la resultante del proyecto sea fácilmente adaptable a las necesidades “cambiantes” de nuestro tiempo.

Los departamentos se entregaron sin muros interiores a cada uno de sus futuros habitantes, quienes los amueblaron de acuerdo con sus necesidades. Pueden tener de una a tres recamaras, armándolas con los muros diseñados para ello y modificar esto, de acuerdo con sus necesidades.

Planta de acceso, con las tres recamaras que se proyectaron, que si no son necesarias pueden usarse los espacios en la estancia. La modulación en fachada permite este manejo de áreas, sin afectación alguna.

Todos los muros con instalaciones húmedas, de la cocina y sanitarios se integran en el muro opuesto a la fachada.

De acuerdo con el sistema de medidas modulares, el mobiliario usado se diseñó para su utilización en perfecta armonía con los espacios interiores.

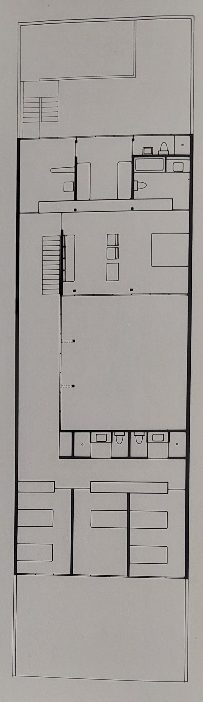
Conjunto de Vivienda Multifamiliar

En este conjunto de vivienda multifamiliar, la planta baja fue de uso común, en los servicios que conjuntamente consideraron necesarios, porqué con el concepto de que “Hacer Vivienda es hacer Ciudad”, se considera primordial que en su realización se considera en primera instancia la integración con el desarrollo urbano, porque la ciudades están formadas por vivienda y si esta considera su entorno y se integra a él, se convierte en un elemento unificador y de gran calidad para los moradores de la ciudad y es el principio de valores para el enlace social y su avance.

Planta de conjunto     

Los espacios interiores y exteriores, así como el mobiliario fueron producto del diseño industrializado, aplicado a la estructura, fachada, ventanearía, así como al mobiliario.

Vivienda Multifamiliar hecha en los años 60s y 70s

Vivienda Social Unifamiliar

En la vivienda social realizada con estos procedimientos modulares se obtienen tiempos más cortos en su realización y menores costos, dado que el desperdicio es mucho menor; además sus espacios se pueden adaptar a las necesidades siempre cambiantes de sus habitantes ya que la obra se realiza con la máxima flexibilidad.

Closet o Armario

fue diseñado como una forma de guardar la ropa de una familia en forma ordenada, llegando  una solución que sistematizaron, al estudiar cada uno de sus componentes dentro de un sistema estandarizado, donde los materiales se aplicaron de acuerdo con las dimensiones necesarias para aprovechar al máximo y de mejor manera los espacios interiores. Además, está realizado con elementos intercambiables, para adecuarlo de acuerdo con las necesidades de cada habitante.

Diseño y Fabricación de Muebles

Mesa de dos posiciones

En consonancia con los planteamientos hechos de: Uso de fórmulas generales para el diseño con medidas modulares, establecieron el sistema de industrializar la producción de muebles para sus espacios.

Arquitectura de Sistemas

Vivienda Unifamiliar

La arquitectura industrial mexicana no se puede entender sin el conocimiento del trabajo realizado por los arquitectos Juan Becerra Vila y Manuel Teja Ontiveros. Considerados precursores de esta disciplina, ambos fueron egresados del IPN: Destacaron por sus aportes en materia de organización y manejo de sistemas arquitectónicos, diseño, fabricación y construcción de inmuebles. En esta vivienda diseñaron en planta baja, la función de esparcimiento y todas las demás funciones, en la planta superior.

Arquitectura de Sistemas.

Los programas masivos de vivienda no podrtán ser resueltos sin el auxilio definitivo de la industria; pero no se pueden transplantar los sistemas constructivos de otros paises. Debemos buscar soluciones propias de nuestra industria.Y sólo para lograrlo, sería posible con una arquitectura de sistemas.

Esta arquitectura se logra por medio de un sistema formado por subsistemas que, combinados, conducen a un solo fin. Las estructuras forman un sistema, los entrepisos otro, las instalaciones otro, etc.

En la medida que estos sistemas se puedan definir, clasificar y tipificar, se logrará que las construcciones y la industria del país se combinenn con gran economía y se propicie la creación de las industrias que hagan falta.

Será necesario contar con un sistema único de medidas que armonice la intervención de los arquitectos, diseñadores, contratistas y fabricante. Será una modulación en función de las medidas del hombre y de los materiales.

Por otra parte, los cambios provocados por la dinámica de la composición familiar; por lo que la elasticidad debe ser un atributo fundamenta de la vivienda popular.

Una vivienda digna sólo se logrará cuando en los programas arquitectónicos no se soslayen ninguna de sus funciones vitales y que para cada una de ellas se diseñe un espacio, un mueble o un equipo adecuado.

Se considera que por ser espacios mínimos y a bajo costo, no se pueden satisfacer todas estas demandas, olvidando que en los espacios mínimos son más necesarias para satisfacer sus necesidades.

En la vivienda popular, los muros divisorios y los closets deben ser parte integral del mobiliario. El muro divisorio, al perder su condición de carga se fdabricará como un mueble desarmable. El closet podrá contar con accesorios intercambiables, de compra en el mercado.

La tarea más importante del arquitecto es ordenar y encauzar los esfuerzos, para aclarar, analizar y definir nuestra situación espiritual y material, para dar liberatd al poder creador del arquitecto., sin formalismos y estetisismos que solo estorban y encarecen la obra.

Casa Habitación  en Club de Golf La Hacienda. 1973

La formación de espacios naturales en la planta baja, integraron la vivienda al medio natural, con espacios confortables.

Planta baja

Las actividades de estar y de descanso en la planta superior, tienen la misma orientación y vista de los espacios abiertos  

Planta alta

Casa Habitación con estructura metálica. 1973

Al ser el acero un material de alta resistencia y limpieza constructiva, su ingeniería de sistemas se une perfectamente a la arquitectura de sistemas, permitiendo espacios interiores libres de elementos de la estructura que impidan un libre manejo de las áreas.

En esta edificación la primera losa tiene trabes sustentantes normales y la superior, trabes invertidas, para obtener un plafond sin obstáculos. En esta obra la mayoría de los muebles fuero diseñados y fabricados por ellos.

Casa Habitación en la Colonia Nueva Santa María

El arquitecto Juan Becerra, nació en Tuxtla Gutiérrez, Chiapas; estudió en la Escuela Superior de Ingeniería y Arquitectura del IPN, donde se recibió en 1951. Asimiló de su maestro juan O´Gorman, el concepto de industrializar la arquitectura, que como diseñador industrial llevó en sus obras a su máxima expresión, con una orientación eminentemente social principalmente en la vivienda.

Casa Habitación en Arboledas. 1966

Con una “arquitectura de sistemas” donde el diseño y los elemenrtos constructivos, desde la cimentación, se conjugaron con los materiales y el mobiliario ntambiém diseñado y fabricado por ellos, para formar espacios apropiados a las siempre dinámicas necesidades del hombre.

Casa Habitación en Las Aguilas.

Con su interacción creativa entre sus actividades industriales, de diseño y su ejercicio profesional fue benéfica para ambas actividades

La integración de los espacios de cada proyecto, tanto internos como externos, con el medio exterior natural, fue una premisa en todas sus obras.

Clínicas prefabricadas para el Programa Cañero del IMSS.

Como un grupo de trabajadores eventuales, los “cañeros”, recibieron la primera atención en 1960 con el Programa Cañero, que necesitó la rápida construcción de unidades médicas para su atención; así Becerra y Teja realizaron 15 unidades médicas prefabricadas para iniciar estos servicios, en diferentes zonas del país productoras de caña de azúcar.

La rapidez de la respuesta a las necesidades del IMSS, marcaron un sendero de calidad y servicio en atención a una población que no contaba con había contado con estos servicios.

Colegio de Bachilleres Iztapalapa, CDMX. 1976

Cúpula Geodésica: Centro Vacacional Oaxtepec del IMSS 1964

Al realizar el Centro Vacacional Oaxtepec, los arquitectos Alejandro Prieto y José María Gutiérrez, sus diseñadores, sabían que esa zona era famosa por su manantial, que era muy visitado desde la época prehispánica. Para darle un carácter especial, contrataron al arquitecto Richard Buckminster Fuller, quien diseñó una Cúpula geodésica; pero para construirla sobre él propio manantial, no le daban los tiempos por necesitar materiales altamente especializados Entonces le propusieron a Manuel Teja y Juan Becerra su realización. Ellos diseñaron y fabricaron las piezas especiales y se encargaron de su armado y construcción.

Apartamentos del Bosque. Anteproyecto

El anteproyecto fue realizado en la década de los años 70, con la búsqueda de aprovechar lo más posible las condiciones del medio ambiente natural, con la vista hacia los mejores espacios externos

Localización

Edificio de Oficinas.

Diseño y fabricación de carrocerias. 1962

Autobuses de la época y el diseñado y fabricado por los arquitectos

  1. Promover centros de investigación, diseño y producción arquitectónica industrial para su utilización inmediata en todo género de edificios que el país necesite.
  2. Propiciar la participación de organismos gubernamentales y no gubernamentales, en la producción industrial de productos nacionales relacionados con los espacios arquitectónicos y para el apoyo a las acciones comunitarias.
  3. Establecer sistemas que permitan a los arquitectos fortalecer sus conocimientos sobre las necesidades y satisfactores para los diferentes tipos de ciudades que hay en México, así como los servicios que estas requieren y la mejor forma de otorgar estos.

  1. Arquitectura es el espacio usado por el hombre para realizar sus actividades y satisfacer sus necesidades.
  2. Conocer la escala del hombre y las funciones humanas es fundamental.
  3. La arquitectura es un fenómeno orgánico, espacial, de síntesis.
  4. La arquitectura siempre debe ser producto de la relación: Espacio – Tiempo
  5. Arquitectura para el hombre son todos los espacios hechos a su escala, Vivienda, oficinas, escuelas, etc. Los palacios, templos, etc. tienen una significación distinta, al ser elaborados para señalar diferentes características de algún tipo de poder.
  6. La arquitectura abarca: el diseño de los utensilios usados por el hombre; el mobiliario; los elementos arquitectónicos que configuran los espacios arquitectónicos y todos sus componentes; así como los aspectos que permitan el bueno e integral funcionamiento de los espacios urbano-arquitectónicos: barrios, ciudades, metrópolis, regiones.
  7. Ya que el hombre nace, crece, se reproduce y muere; la arquitectura debe ser dinámica, como son sus necesidades primordiales.
  8. la arquitectura es un producto social y cultural, lo que es primordial al considerarlo en las resultantes espaciales.
  9. Integrar a la naturaleza, en los espacios arquitectónicos, es fundamental, así como anticipar las necesidades y coordinar las soluciones.
  10. Los conceptos y sistemas modernos se integrarán a la arquitectura, en la búsqueda de mejores condiciones sociales, de habitabilidad, economía e integración de nuevos sistemas a la actividad diaria.
  11. El déficit de espacios en nuestro país es enorme, y necesitan ser resueltos con recursos limitados y una arquitectura dinámica y actual.
  12. Debemos analizar el medio natural, social, económico donde se ubicará la obra realizada.